工程案例
法国欧尚超市-东莞
浏览次数:59次2014-08-27
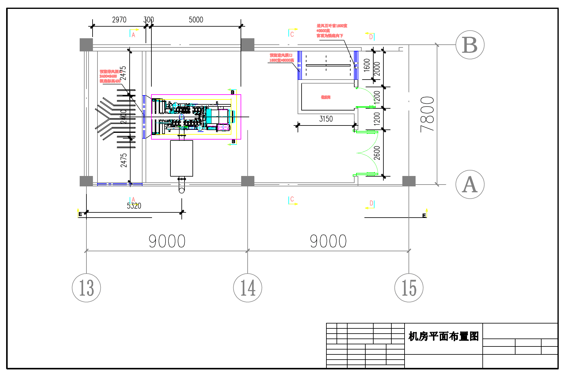
安装内容:
1、提供柴油发电机组吊装就位,用户接地端子连接及安装;
2、提供进排风道消噪优质材料、进排风口百叶及安装;
3、提供排气法兰、钢支架、排烟管及安装;
4、提供排风软连接、导风扩容消声风管及安装;
5、提供机房内墙及顶部消噪优质吸音材料及安装;
6、提供机房门制做及消噪防火处理安装;
7、提供日用油箱(1000升)带电动油泵及发电机和油箱连接的油路管线安装;
8、提供防爆灯具及布置安装,提供开关及管线布置;
9、提供机房降噪工程整体验收合格报告.





图片集



